Adroit Group
You are here: Home / Our Brands /Tyros /TYROS Prestress Systems
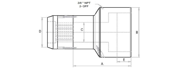
MULTI STRAND JACKS -LONG PROFILE
CAPACITY 200-425 TON/STROKE 150-300MM/WORKING PRESSURE 650 BAR
- Mechanical stroke limiter (by-pass type) & pressure relief valve on return side for safety
- Relief valve in return line for safety
- Pre-stressing & post tensioning of strands in concrete structure
- Suitable calibrated power pack units & accessories available
| Model |
Capacity |
Capacity |
Stroke |
Maximum No. of Strands |
Effective Area |
Oil Cap. |
A Closed height |
B Cylinder OD |
C C'hole dia. |
D Ram dia. |
E Depth |
Wt. (Approx) |
|
(ton) |
(kN) |
(mm) |
0.5" Size |
0.6" Size |
(cm2) |
(cc) |
(mm) |
(mm) |
(mm) |
(mm) |
(mm) |
(kg.) |
| AMSA 2030 |
200 |
2013 |
300 |
12 |
7 |
309.6 |
9290 |
785 |
315 |
120 |
240 |
327 |
265 |
| AMSA 3016 |
300 |
3001 |
160 |
12 |
7 |
500.3 |
8355 |
535 |
390 |
140 |
- |
189 |
245 |
| AMSA 3530 |
350 |
3517 |
300 |
19 |
12 |
541.1 |
16234 |
830 |
430 |
165 |
290 |
330 |
450 |
| AMSA 42.515 |
425 |
4288 |
150 |
31 |
19 |
659.7 |
9900 |
515 |
475 |
190 |
315 |
177 |
39 |
- 1. Specification are subject to change due to continual improvement
- 2. Capacity & stroke specified are maximum safe limits. As safe practice,use at 80% of rating
- 3. Higher capacity & customized solutions on request.
Scroll to top
Scroll to top